SEON III – Seon

Neubau Wohnen in Seon

Der Neubau von zwei Mehrfamilienhäusern, befindet sich in Seon östlich der Seetalstrasse am nördlichen Rand des Zentrums mit Bahnhof, Gemeindehaus und Schulen. Die Entwicklung dieser, bisher weitestgehend brachliegenden Parzelle in der Kernzone, begrenzt durch den Salzweg im Süden und Reiterweg im Norden, bietet ein grosses Potential zur Innenentwicklung. Die Gebäudestellung auf der Perimeterfläche mit einer nahezu dreieckigen Grundform direkt angrenzend an Strassen und Wege unterschiedlichster Bedeutung, berücksichtigt zum einen die Lärmimmissionen der Seetalstrasse und zum anderen die unterschiedlichen Adressierungen an der Seetalstrasse und am Salzweg.

Haus A zeigt sich klar und präsent zur Seetalstrasse ausgerichtet und staffelt sich gegenüber dem rückwärtigen Parzellenteil Salzweg in der Höhe ab. Der Baukörper präsentiert sich als geschlossenes Volumen ohne Vor- und Rücksprünge, gegliedert durch die abgewinkelten rückwärtigen Fassadenfluchten. Der Ausdruck des tieferliegenden und zurückversetzten Haus B ist dem gegenüber kleinteiliger abgewinkelt und gegliedert. Durch die vorspringenden Balkone entsteht eine lebendige Fassade. Durch unterschiedliche Formensprachen der Baukörper wird mit den beiden Mehrfamilienhäusern bewusst eine Differenzierung erzeugt. Durch die Fassadengestaltung und -details wird wiederum eine Einheitlichkeit hergestellt.

Das Umgebungskonzept sieht einen durchgängigen, bespielbaren Aussenraum. Verschiedene Spiel- und Aufenthaltsbereiche sind entlang der durchgängigen Wegverbindungen ringsum die Gebäude angeordnet.

Wir danken der Auftraggeberschaft Tierstein AG, Frick und dem ganzen Planungsteam für die erfolgreiche Zusammenarbeit!
 
Auftraggeber:Tierstein AG, Frick
Visualisierung Husistein & Partner AG
Schwarzplan
Umgebungsplan
-2 UG
-1 UG
Regelgeschoss
Attika
Dach
Ansicht West
Ansicht Nord Haus B
Ansicht West Haus A
Ansicht Süd Haus A
Ansicht Nord Haus A
Ansicht Süd Haus B
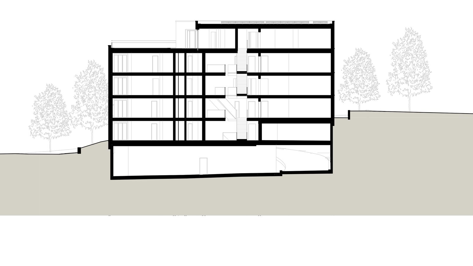
Längsschnitt
Querschnitt B
Querschnitt D
Querschnitt C
Materialkonzept Fassade Haus A
Materialkonzept Fassade Haus B