Frikart – Zofingen

Arealtransformation «Frikartpark»

Das Areal «Frikartpark» in der Stadt Zofingen befindet sich südlich der Altstadt, direkt an den Bahngleisen. Der charakteristische zweigeschossige «Gewerbebau Frikart» im Süden des Areals mit Walmdach und halbrunder Hufeisenform bleibt als identitätsstiftendes Element für das Quartier erhalten, und ist auch Vertreter der baukünstlerischen Epoche des «Neues Bauens» aus der Zeit 1920-1940.

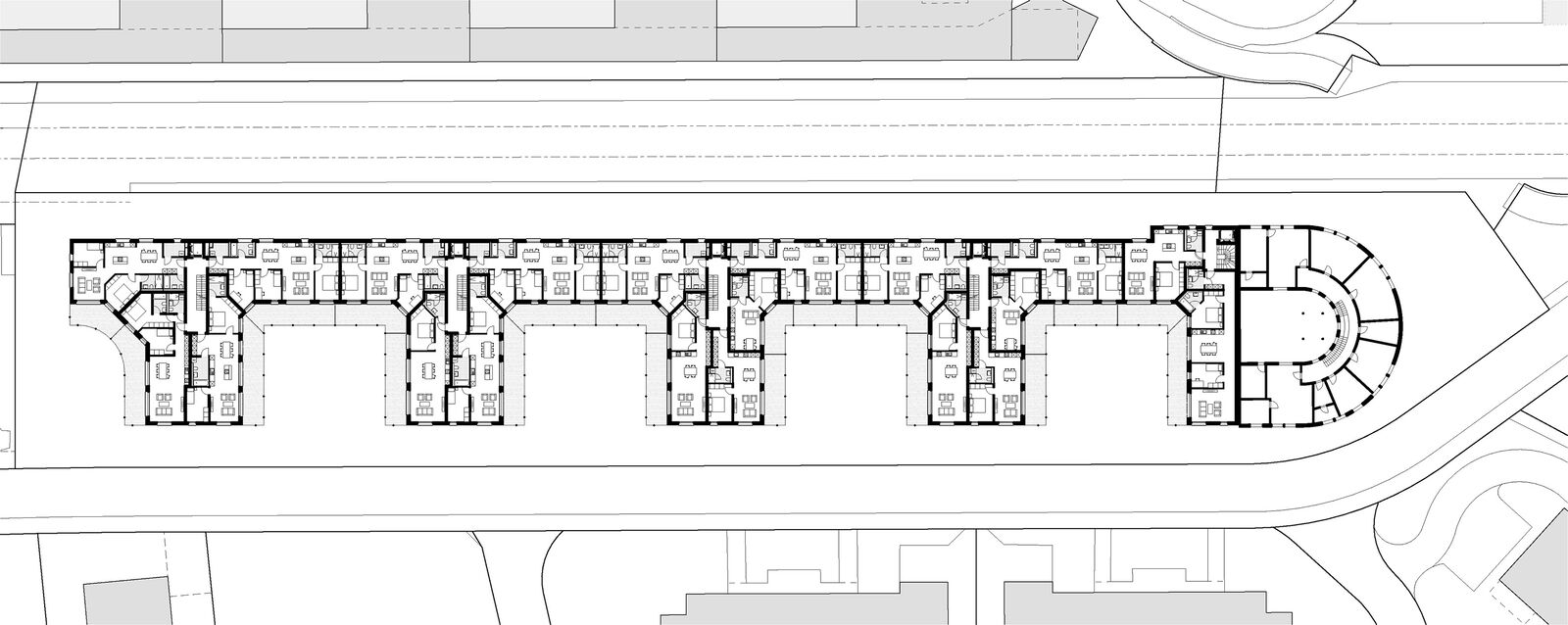
Als Neuentwicklung wird die bestehende Gewerbehalle im nördlichen Teil der Parzelle durch einen Neubau ersetzt. Die Gebäudestruktur des Neubaus schützt vor Bahnlärm und öffnet sich zum Wohnquartier. An den fünfgeschossigen Riegel docken die viergeschossigen, schmalen Kämme an und nehmen zusammen mit dem zurückversetzten Attika Rücksicht auf den Rundbau sowie das Wohnquartier. Als Pendant zum bestehenden «Gewerbebau Frikart», wird das nördliche Ende des Riegels mit einer, nach innen gerundeter Form abgeschlossen.

Die Wohnhöfe zwischen den Kämmen unterscheiden sich in ihrer Nutzungsart, um verschiedenen Bedürfnissen gerecht zu werden. Die sorgfältige Auswahl an heimischen Pflanzen und Bäumen leistet einen wertvollen Beitrag zur Begrünung des Quartiers und Klimatisierung im Sommer. Der Quartiertreffpunkt vor dem «Gewerbebau Frikart» soll mit der neuen Ausgestaltung für Anwohner und Angestellte attraktiver werden. Der Platz wird mit Grünflächen, Bäumen und Elementen, die an die industrielle Vergangenheit des Grundstückes erinnern, aufgewertet.

Wir danken der Auftraggeberschaft Forleo Immobilien und Entwicklungs AG, Zürich und dem ganzen Planungsteam für die erfolgreiche Zusammenarbeit!

 

Auftraggeber:Forleo Immobilien und Entwicklung AG, Zürich
Visualisierung nördlicher Anschluss
Visualisierung aus Frikartstrasse
Schwarzplan
Umgebungsplan
Obergeschoss
Attika
Untergeschoss
Ansicht Nord
Ansicht Ost
Ansicht Süd
Ansicht West
Längsschnitt
Querschnitt
Farb & Material Ansicht
Gewerbebau Frikart